Enige tijd geleden kon je in onze krant lezen dat AGSO Knokke-Heist en CAAAP de definitieve omgevingsvergunning voor de heraanleg van het Maes- en Boereboomplein hadden verkregen. Ondertussen kunnen wij je na een succesvolle voorverkoop van Hoost de volgende mijlpaal in het project aankondigen. Na het kerstverlof (10/01/2022) start aannemer Artes met de werken.
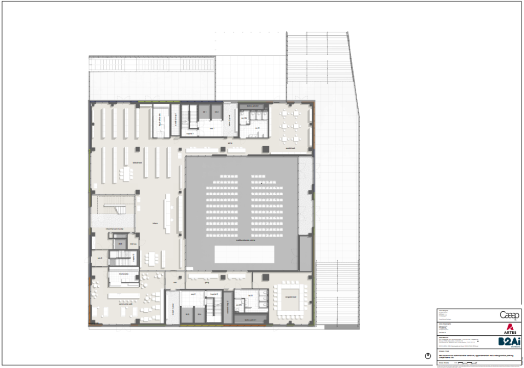
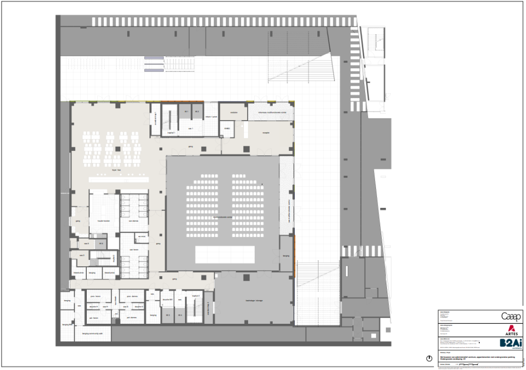
Op het plein komen onder meer de nieuwe publieke bibliotheek, raadzaal en multifunctionele evenementenruimte. Aanvullend worden 97 appartementen (waaronder ook appartementen in het segment “betaalbaar wonen”) en 2 handelsruimtes gebouwd. Naast de toren wordt ook het volledige plein opnieuw aangelegd en zal de infrastructuur rond het plein worden vernieuwd.
Vanaf 10 januari 2022 wordt het plein en de sportaccommodatie gesloopt, waarna de grondwerken van start kunnen gaan. Het plein zal dus niet meer toegankelijk zijn vanaf begin januari 2022. De dichtste alternatieve parking is de site Oude Depot Heist. De grondwerken en de bouw van de ondergrondse parking zullen quasi volledig 2022 in beslag nemen, waarna wordt gestart met de bovenbouw. De pleinaanleg en wegenis volgen daarop.
Er wordt verwacht dat de werken circa 42 werkmaanden in beslag zullen nemen. De werfinrichting wordt zodanig georganiseerd dat de hinder voor de omwonenden en het doorgaand verkeer zo beperkt mogelijk zal zijn. Indien er op bepaalde tijdstippen grotere hinder verwacht wordt, zullen we jou hier op tijd over informeren.
“Wij beseffen dat werken van dergelijke omvang een impact hebben op de buurt, zegt het gemeentelijk bedrijf AGSO. Daarom willen we graag op een vlotte en laagdrempelige manier bereikbaar zijn tijdens de werken. Voor al jouw vragen met betrekking tot de werken, kan je een email sturen naar mbp@agsoknokke-heist.be“


















